رواق

مساحتك الخاصة بين الراحة والجمال

مميزات تعيشها وتحسها

في رواق، كل تفصيلة معمولة علشان تحس بالراحة والانتماء، وتلاقي نفسك عايش اللحظات اللي بتحلم بيها

01
رواق داخلي
رواق داخلي أنيق يجمع بين الطابع المعماري الأصيل والتصميم العصري، ليمنحك ممرات رحبة وإطلالات ساحرة تعكس روح المكان
صورة
02
خصوصية
في خصوصية حديقتك، تتسع اللحظات لتجمع العائلة حول الضحكات والحديث الدافئ. هنا، تتحول المساحة الخضراء إلى مسرح للذكريات التي تكبر معكم
صورة
03
الاستدامة
في رواق، نؤمن أن الراحة الحقيقية تبدأ من بيئة متوازنة. صممنا كل التفاصيل لنحافظ على الطبيعة ونوفر لك أسلوب حياة صحي يدوم لأجيال قادمة
صورة
04
الكلوب هاوس
قلب الكمبوند النابض بالحياة، حيث تلتقي الأجواء الاجتماعية بالراحة والرفاهية. هنا ستجد مساحتك المثالية للقاء الأصدقاء، الاسترخاء، وصناعة ذكريات تدوم
صورة

كل شيء بجانبك

في رواق، صممنا كمبوند متكامل يضم كافة المرافق الأساسية ومجموعة مختارة من وسائل الراحة، لتستمتع بحياة عصرية متوازنة تجمع بين الراحة والرفاهية

صورة
منطقة الأطفال
مساحة آمنة مليئة بالألوان والمرح، صممناها خصيصًا لينطلق أطفالك بحرية ويكتشفوا عالمهم، بينما تستمتع أنت براحة البال
صورة
مساحات اعمال
مساحات عمل عصرية مجهزة لتمنحك بيئة مثالية للإنتاجية والإبداع
صورة
جيم
جيم متكامل بأحدث الأجهزة لتجربة رياضية مميزة تعزز صحتك ولياقتك
صورة
حمام سباحة
حمام سباحة أنيق مصمم للاستمتاع بالسباحة والاسترخاء طوال العام
صورة
جراج مغطى
ركن سيارتك أصبح أسهل وأكثر أمانًا، مع جراج تحت الأرض يحمي سيارتك من عوامل الجو ويوفر لك راحة البال في كل يوم
صورة
مسجد
مسجد علي بعد خطوات من بيتك
صورة
نادى صحى
نادى صحى

دقائق تفصلك عن كل ما تحتاجه

  • يبعد عن النادي الأهلي مسافة 2 دقيقة.
  • يبعد عن هايبر وان مسافة 4 دقائق.
  • يبعد عن آركان بلازا مسافة 8 دقائق.
  • يبعد عن مول العرب مسافة 12 دقيقة.

75 %

مسحات خضراء

7,100 m2

نادي اجتماعي

الوحدات المتاحة

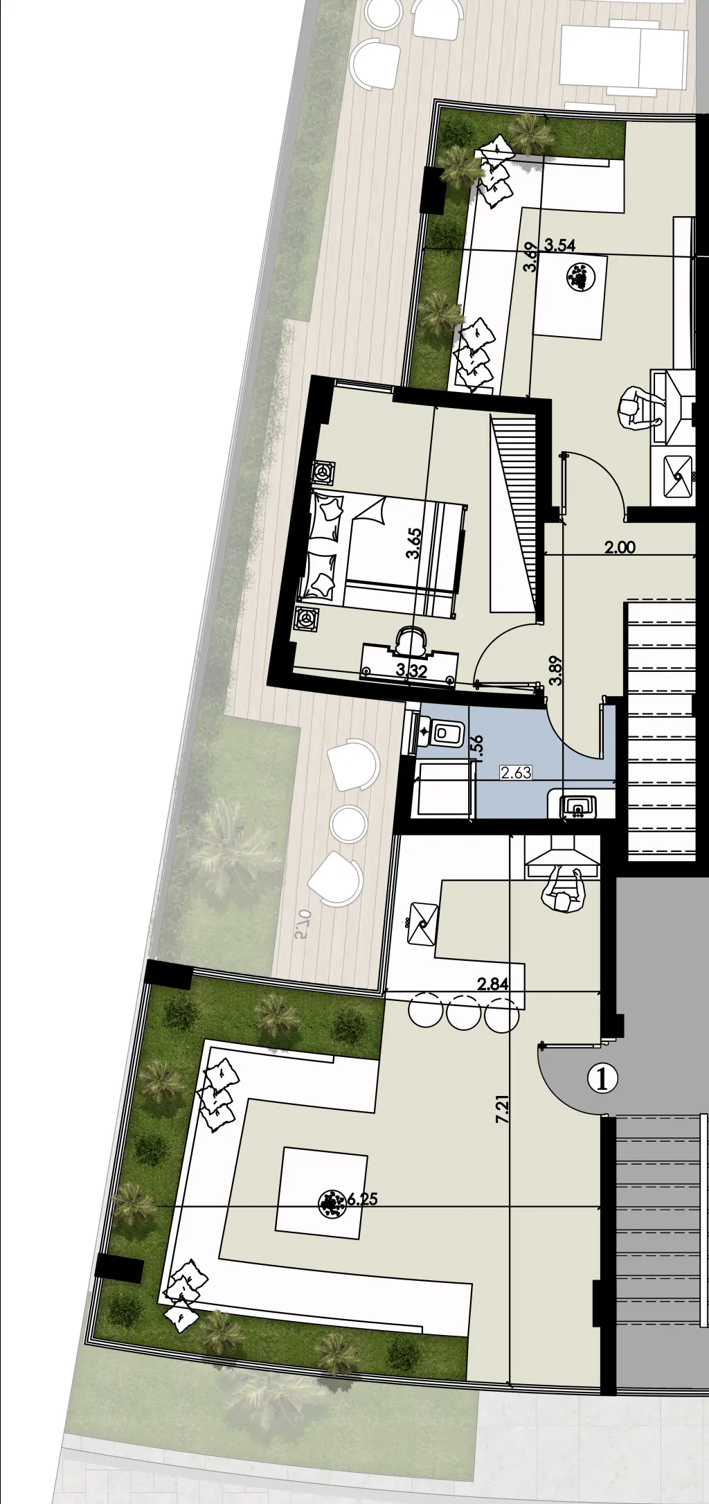
رواق فيلا
رواق فيلا المساحات من 197: 274
نوع الوحدة
دوبليكس
المساحة بالمتر المربع
229
غرف النوم
4
الحمامات
3
سكاى فيلا
سكاى فيلا المساحات من 141 : 199
نوع الوحدة
بينتهاوس
المساحة بالمتر المربع
148
غرف النوم
3
الحمامات
2
تاون هاوس
تاون هاوس المساحات من 338 : 472
نوع الوحدة
تاون هاوس
المساحة بالمتر المربع
338
غرف النوم
7
الحمامات
6
سكاى شقة
سكاى شقة المساحات من 110 : 153
نوع الوحدة
شقة
المساحة بالمتر المربع
153
غرف النوم
3
الحمامات
2

طلب اتصال

webLang/footer.cta_call_us webLang/footer.cta_whatsapp